Onze klanten zeggen

UITSTEKEND

4.3 / 5

Onze klanten zeggen

EXELENT

4.4 / 5

Bouwkunde

1 jaar geleden

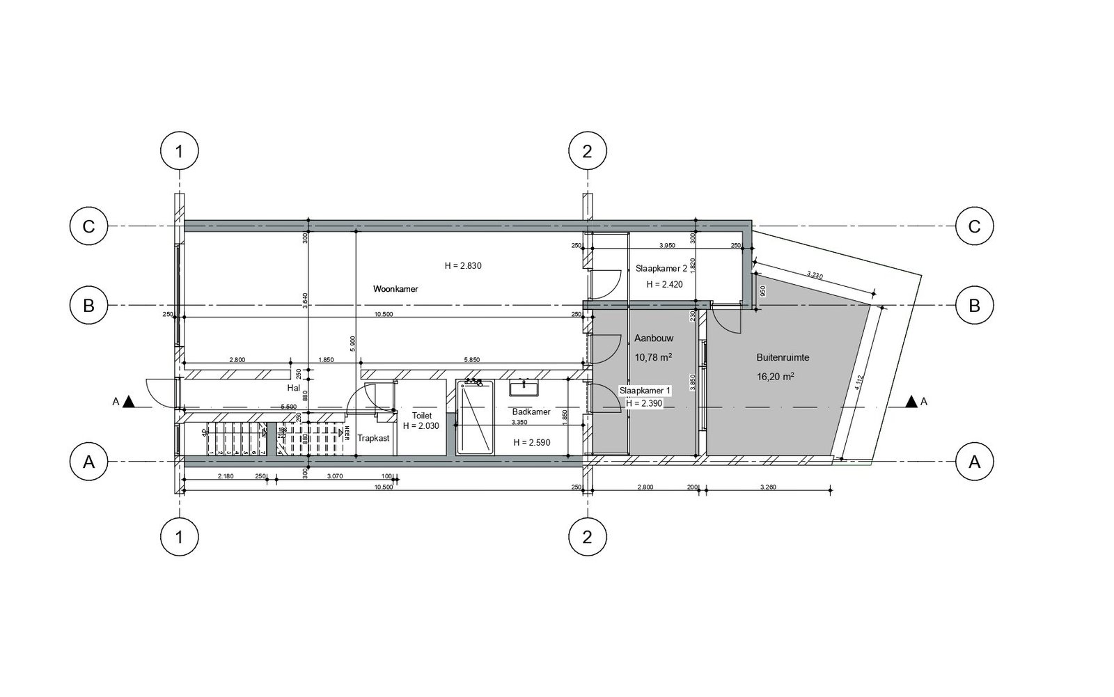
Bouwtekening voor uitbouw woning

Een bouwtekening laten maken van een uitbouw aan de achterkant van een woning om meer woonoppervlakte te creëren.

Oplevering

30-01-2025

Soort werk

Technische tekening; ontwerp tekening

Oplevering voorbeeld

Een voorbeeld van een aantal van de opgeleverde documenten.

Inschrijven

– De opdracht is succesvol opgeleverd –

Recensie en reflectie

Recensie klant

Reflectie student

Ik vond het erg interessant en leuk om een bestaande uitbouw te tekenen. Het was uitdagend om de situatie over te nemen en deze technisch correct op te zetten.

Locatie

Den Haag

Uitwerking

Online

Context

Betreft een koopwoning, gelijkvloers op de begane grond voor een oud echtpaar. In verband met beperkte mobiliteit hebben zij hun bovenwoning verkocht en zijn zij verhuisd naar de benedenwoning. Benedenwoning heeft beperkte woonruimte voor 2 volwassenen en daarom is de wens om een extra slaapkamer te creëren, wat grenst aan een badkamer. Bouwtekening is nodig voor een omgevingsvergunning.

Vakgebied

Bouwkunde

Soort werk

Technische tekening; ontwerp tekening

Project nmr.

24043BK

Ontdek Bouwkunde

Bereidt jouw project optimaal voor met onder andere:

Architectuurplannen en bouwgereedschap op een tafel.

Ook een bouwkundige student inhuren?